【国家标准】【DA/T 22—2015】归档文件整理规则
中华人民共和国档案行业标准
DA/T22—2015
代替DA/T22—2000
归档文件整理规则
Thearrangementruleofarchivaldocuments
2015-10-25发布 2016-06-01实施
国家档案局
前言
本标准代替DA/T22-2000《归档文件整理规则》。
本标准与DA/T22-2000相比主要变化如下:
——标准的总体编排和结构按GB/T1.1-2009进行了修改;
——将标准适用范围由纸质文件材料扩展为纸质和电子文件材料;
——调整归档文件分类方法;
——增加归档文件组件和纸质归档文件修整、装订、编页、排架要求;
——增加归档文件档号结构和编制要求;
——将室编件号、馆编件号统一为件号;
——在附录中增加归档章示例、直角装订方法。
本标准的附录A是规范性附录,附录B、附录C、附录D、附录E是资料性附录。
本标准由国家档案局提出并归口。
本标准起草单位:国家档案局档案馆(室)业务指导司。
本标准主要起草人:许卿卿丁德胜张会琴张红吴惠敏刘峰王勤宋涌
本标准于2000年12月6日首次发布。
归档文件整理规则
1 范围
本标准规定了应作为文书档案保存的归档文件的整理原则和方法。
本标准适用于各级机关、团体、企事业单位和其他社会组织对应作为文书档案保存的归档文件的整理。其他门类档案可以参照执行。企业单位有其他特殊规定的,从其规定。
2 规范性引用文件
下列文件对于本文件的应用是必不可少的。凡是注日期的引用文件,仅所注日期的版本适用于本文件。凡是不注日期的引用文件,其最新版本(包括所有的修改单)适用于本文件。
GB/T18894电子文件归档与管理规范
DA/T1-2000档案工作基本术语
DA/T13-1994档号编制规则
DA/T25-2000档案修裱技术规范
DA/T38-2008电子文件归档光盘技术要求和应用规范
3 术语和定义
下列术语和定义适用于本标准。
3.1
归档文件archivaldocument(s)
立档单位在其职能活动中形成的、办理完毕、应作为文书档案保存的文件材料,包括纸质和电子文件材料。
3.2
整理arrangement
将归档文件以件为单位进行组件、分类、排列、编号、编目等(纸质归档文件还包括修整、装订、编页、装盒、排架;电子文件还包括格式转换、元数据收集、归档数据包组织、存储等),使之有序化的过程。
3.3
件item
归档文件的整理单位。
3.4
档号archivalcode
在归档文件整理过程中赋予其的一组字符代码,以体现归档文件的类别和排列顺序。
4 整理原则
4.1归档文件整理应遵循文件的形成规律,保持文件之间的有机联系。
4.2归档文件整理应区分不同价值,便于保管和利用。
4.3归档文件整理应符合文档一体化管理要求,便于计算机管理或计算机辅助管理。
4.4归档文件整理应保证纸质文件和电子文件整理协调统一。
5 一般要求
5.1组件(件的组织)
5.1.1件的构成
归档文件一般以每份文件为一件。正文、附件为一件;文件正本与定稿(包括法律法规等重要文件的历次修改稿)为一件;转发文与被转发文为一件;原件与复制件为一件;正本与翻译本为一件;中文本与外文本为一件;报表、名册、图册等一册(本)为一件(作为文件附件时除外);简报、周报等材料一期为一件;会议纪要、会议记录一般一次会议为一件,会议记录一年一本的,一本为一件;来文与复文(请示与批复、报告与批示、函与复函等)一般独立成件,也可为一件。有文件处理单或发文稿纸的,文件处理单或发文稿纸与相关文件为一件。
5.1.2件内文件排序
归档文件排序时,正文在前,附件在后;正本在前,定稿在后;转发文在前,被转发文在后;原件在前,复制件在后;不同文字的文本,无特殊规定的,汉文文本在前,少数民族文字文本在后;中文本在前,外文本在后;来文与复文作为一件时,复文在前,来文在后。有文件处理单或发文稿纸的,文件处理单在前,收文在后;正本在前,发文稿纸和定稿在后。
5.2分类
5.2.1立档单位应对归档文件进行科学分类,同一全宗应保持分类方案的一致性和稳定性。
5.2.2归档文件一般采用年度—机构(问题)—保管期限、年度—保管期限—机构(问题)等方法进行三级分类。
a)按年度分类
将文件按其形成年度分类。跨年度一般应以文件签发日期为准。对于计划、总结、预算、统计报表、表彰先进以及法规性文件等内容涉及不同年度的文件,统一按文件签发日期判定所属年度。跨年度形成的会议文件归入闭幕年。跨年度办理的文件归入办结年。当形成年度无法考证时,年度为其归档年度,并在附注项加以说明。
b)按机构(问题)分类
将文件按其形成或承办机构(问题)分类。机构分类法与问题分类法应选择其一适用,不能同时采用。采用机构分类的,应根据文件形成或承办机构对归档文件进行分类,涉及多部门形成的归档文件,归入文件主办部门。采用问题分类的,应按照文件内容所反映的问题对归档文件进行分类。
c)按保管期限分类
将文件按划定的保管期限分类。
5.2.3规模较小或公文办理程序不适于按机构(问题)分类的立档单位,可以采取年度—保管期限等方法进行两级分类。
5.3排列
5.3.1归档文件应在分类方案的最低一级类目内,按时间结合事由排列。
5.3.2同一事由中的文件,按文件形成先后顺序排列。
5.3.3会议文件、统计报表等成套性文件可集中排列。
5.4编号
5.4.1归档文件应依分类方案和排列顺序编写档号。档号编制应遵循唯一性、合理性、稳定性、扩充性、简单性原则。
5.4.2档号的结构宜为:全宗号-档案门类代码·年度-保管期限-机构(问题)代码-件号。
上、下位代码之间用“-”连接,同一级代码之间用“·”隔开。如“Z109-WS·2011-Y-BGS-0001”。
5.4.3档号按照以下要求编制:
a)全宗号:档案馆给立档单位编制的代号,用4位数字或者字母与数字的结合标识,按照DA/T13-1994编制。
b)档案门类代码·年度:归档文件档案门类代码由“文书”2位汉语拼音首字母“WS”标识。年度为文件形成年度,以4位阿拉伯数字标注公元纪年,如“2013”。
c)保管期限:保管期限分为永久、定期30年、定期10年,分别以代码“Y”、“D30”、“D10”标识。
d)机构(问题)代码:机构(问题)代码采用3位汉语拼音字母或阿拉伯数字标识,如办公室代码“BGS”等。归档文件未按照机构(问题)分类的,应省略机构(问题)代码。
e)件号:件号是单件归档文件在分类方案最低一级类目内的排列顺序号,用4位阿拉伯数字标识,不足4位的,前面用“0”补足,如“0026”。
5.4.4归档文件应在首页上端的空白位置加盖归档章并填写相关内容。电子文件可以由系统生成归档章样式或以条形码等其他形式在归档文件上进行标识。
5.4.5归档章应将档号的组成部分,即全宗号、年度、保管期限、件号,以及页数作为必备项,机构(问题)可以作为选择项(见附录A图A1)。归档章中全宗号、年度、保管期限、件号、机构(问题)按照5.4.3编制,页数用阿拉伯数字标识(见附录A图A2)。为便于识记,归档章保管期限也可以使用“永久”“30年”“10年”简称标识,机构(问题)也可以用“办公室”等规范化简称标识(见附录A图A3)。
5.5编目
5.5.1归档文件应依据档号顺序编制归档文件目录。编目应准确、详细,便于检索。
5.5.2归档文件应逐件编目。来文与复文作为一件时,对复文的编目应体现来文内容。归档文件目录设置序号、档号、文号、责任者、题名、日期、密级、页数、备注等项目。
a)序号:填写归档文件顺序号。
b)档号:档号按照5.4.2-5.4.3编制。
c)文号:文件的发文字号。没有文号的,不用标识。
d)责任者:制发文件的组织或个人,即文件的发文机关或署名者。
e)题名:文件标题。没有标题、标题不规范,或者标题不能反映文件主要内容、不方便检索的,应全部或部分自拟标题,自拟内容外加方括号“[]”。
f)日期:文件的形成时间,以国际标准日期表示法标注年月日,如19990909。
g)密级:文件密级按文件实际标注情况填写。没有密级的,不用标识。
h)页数:每一件归档文件的页面总数。文件中有图文的页面为一页。
i)备注:注释文件需说明的情况。
5.5.3归档文件目录推荐由系统生成或使用电子表格进行编制。目录表格采用A4幅面,页面宜横向设置(见附录B图B1)。
5.5.4归档文件目录除保存电子版本外,还应打印装订成册。装订成册的归档文件目录,应编制封面(见附录B图B2)。封面设置全宗号、全宗名称、年度、保管期限、机构(问题),其中全宗名称即立档单位名称,填写时应使用全称或规范化简称。归档文件目录可以按年装订成册,也可每年区分保管期限装订成册。
6 纸质归档文件的修整、装订、编页、装盒和排架
6.1修整
6.1.1归档文件装订前,应对不符合要求的文件材料进行修整。
6.1.2归档文件已破损的,应按照DA/T25-2000予以修复;字迹模糊或易退变的,应予复制。
6.1.3归档文件应按照保管期限要求去除易锈蚀、易氧化的金属或塑料装订用品。
6.1.4对于幅面过大的文件,应在不影响其日后使用效果的前提下进行折叠。
6.2装订
6.2.1归档文件一般以件为单位装订。归档文件装订应牢固、安全、简便,做到文件不损页、不倒页、不压字,装订后文件平整,有利于归档文件的保护和管理。装订应尽量减少对归档文件本身影响,原装订方式符合要求的,应维持不变。
6.2.2应根据归档文件保管期限确定装订方式,装订材料与保管期限要求相匹配。为便于管理,相同期限的归档文件装订方式应尽量保持一致,不同期限的装订方式应相对统一。
6.2.3用于装订的材料,不能包含或产生可能损害归档文件的物质。不使用回形针、大头针、燕尾夹、热熔胶、办公胶水、装订夹条、塑料封等装订材料进行装订。
6.2.4永久保管的归档文件,宜采取线装法装订。页数较少的,使用直角装订(见附录C图C1、图C2)或缝纫机轧边装订,文件较厚的,使用“三孔一线”装订。永久保管的归档文件,使用不锈钢订书钉或浆糊装订的,装订材料应满足归档文件长期保存的需要。
6.2.5永久保管的归档文件,不使用不锈钢夹或封套装订。
6.2.6定期保管的、需要向综合档案馆移交的归档文件,装订方式按照6.2.4-6.2.5执行。定期保管的、不需要向综合档案馆移交的归档文件,装订方式可以按照6.2.4执行,也可以使用不锈钢夹或封套装订。
6.3编页
6.3.1纸质归档文件一般应以件为单位编制页码。
6.3.2页码应逐页编制,宜分别标注在文件正面右上角或背面左上角的空白位置。
6.3.3文件材料已印制成册并编有页码的;拟编制页码与文件原有页码相同的,可以保持原有页码不变。6.4装盒
将归档文件按顺序装入档案盒,并填写档案盒盒脊及备考表项目。不同年度、机构(问题)、保管期限的归档文件不能装入同一个档案盒。
6.4.1档案盒
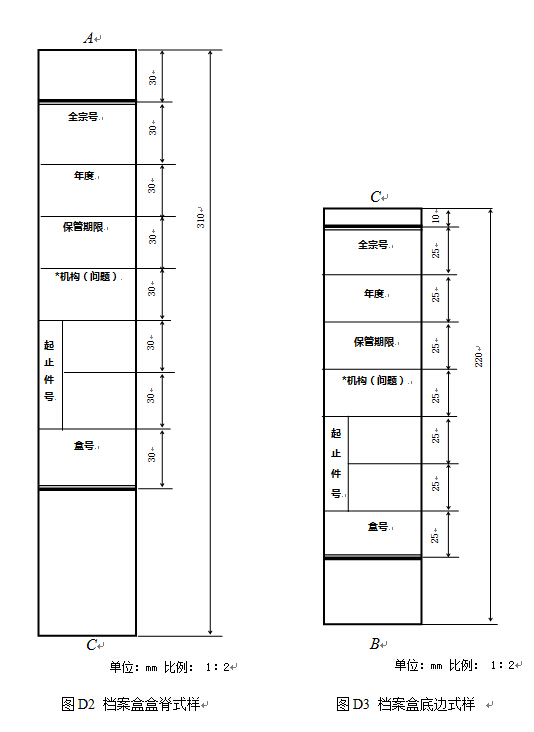
6.4.1.1档案盒封面应标明全宗名称。档案盒的外形尺寸为310mm×220mm(长×宽),盒脊厚度可以根据需要设置为20mm、30mm、40mm、50mm等(见附录D图D1)。
6.4.1.2档案盒应根据摆放方式的不同,在盒脊或底边设置全宗号、年度、保管期限、起止件号、盒号等必备项,并可设置机构(问题)等选择项(见附录D图D2、图D3)。其中,起止件号填写盒内第一件文件和最后一件文件的件号,起件号填写在上格,止件号填写在下格;盒号即档案盒的排列顺序号,按进馆要求在档案盒盒脊或底边编制。
6.4.1.3档案盒应采用无酸纸制作。
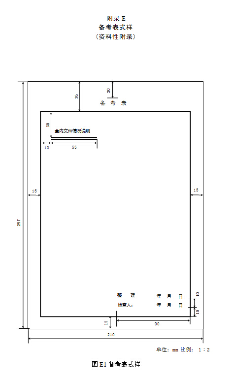
6.4.2备考表
备考表置于盒内文件之后,项目包括盒内文件情况说明、整理人、整理日期、检查人、检查日期(见附录E)。
a)盒内文件情况说明:填写盒内文件缺损、修改、补充、移出、销毁等情况。
b)整理人:负责整理归档文件的人员签名或签章。
c)整理日期:归档文件整理完成日期。
d)检查人:负责检查归档文件整理质量的人员签名或签章。
e)检查日期:归档文件检查完毕的日期。
6.5排架
6.5.1归档文件整理完毕装盒后,上架排列方法应与本单位归档文件分类方案一致,排架方法应避免频繁倒架。
6.5.2归档文件按年度—机构(问题)—保管期限分类的,库房排架时,每年形成的档案按机构(问题)序列依次上架,便于实体管理。
6.5.3归档文件按年度—保管期限—机构(问题)分类的,库房排架时,每年形成的档案按保管期限依次上架,便于档案移交进馆。
7 归档电子文件的整理要求
7.1归档电子文件组件(件的组织)、分类、排列、编号、编目,应符合本《规则》“5一般要求”的规定。
7.2归档电子文件的格式转换、元数据收集、归档数据包组织、存储等整理要求,参照《数字档案室建设指南》(2014年)、GB/T18894、DA/T48、DA/T38等标准执行。
7.3归档电子文件整理,应使用符合《数字档案室建设指南》(2014年)、GB/T18894等标准的应用系统。







